Opis projektu
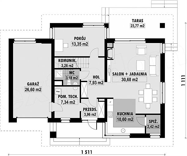
Projekt domu z poddaszem o kącie nachylenia połaci 35 stopni, z salonem połączonym z dużą kuchnią z jadalnią. Dodatkowy pokój na parterze można wykorzystać do pracy lub jako sypialnię Na poddaszu zostały zlokalizowane trzy sypialnie oraz duża wspólna łazienka z narożną wanną.
