Opis projektu
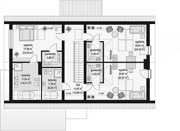
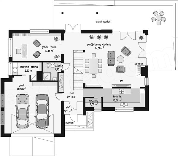
Projekt domu Gala to wygodna, nowoczesna willa dla czterech-sześciu osób. Bryłę budynku zaprojektowano jako parterową z poddaszem użytkowym, o kształcie prostokąta przekrytego dwuspadowym dachem, z dodanymi parterowymi dobudówkami garażu, wejścia, czy podcienia przy tarasie ogrodowym. Projekt domu Gala łączy w sobie tradycyjną formę z awangardowymi, nowoczesnymi rozwiązaniami zastosowanych materiałów, płaskich dachów, czy dużych przeszkleń otwierających wnętrze na ogród. Dzięki takiej architekturze dom Gala dobrze się prezentuje zarówno wśród modnych miejskich willi, jak i na typowej polskiej wsi. Wnętrze domu na parterze przedzielono poprzecznym do bryły holem z jednobiegowymi, bardzo atrakcyjnymi wnętrzarsko schodami. Po jednej stronie zaplanowano część dzienną salonu, jadalni, kuchni, po drugiej - część gospodarczą z garażem i kotłownią, oraz dodatkowy pokój lub gabinet. Na poddaszu mieszczą się sypialnie dziecięce z garderobami i łazienką, oraz apartament rodziców własnym pokojem kąpielowym i garderobą. W ofercie pracowni znajduje się też wersja odbicia lustrzanego projektu domu Gala. Istnieje równiez możliwość zakupu projektu w standardzie NF40.
