Opis projektu
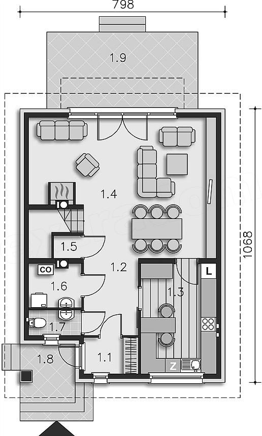
Prosta bryła i dwuspadowy dach sprawiają, że jest to dom niedrogi w realizacji. Doskonale rozplanowana przestrzeń, wyraźny podział stref na dzienną oraz nocną, dwie duże łazienki oraz dodatkowo wc, a także pom. gosp. i garderoba wpływają znacznie na komfort użytkowania domu. W projekcie przewidziano duży salon z kominkiem, z miejscem na duży stół i z wyjściem na taras. Dzięki zastosowaniu dużych przeszklonych drzwi i otwartej przestrzeni na parterze, parter jest doskonale oświetlony. Zastosowanie w elewacji elementów drewnianych, cegły klinkierowej oraz szklanych i metalowych poręczy balkonów nadaje budynkowi nowoczesnego charakteru.
