dachy mury Bud24 przetargi dekarze forum kontakt

Projekt domu Radosny WAH1055

kontakt - projekty domów | extradom

Joanna Skoczylas - Kunda

Porady, oferty, zamówienia

Jak zamówić projekt?

22 451 01 70

pn-pt 8-22, sb 10-18

Pow. użytkowa 93,3 m2 Kubatura 322 m3 Wysokość domu 7,4 m
Pow. zabudowy 72,9 m2 Min. szer. działki 18,39 m Kąt nach. dachu 42 st
Pow. dachu 157,87 m2 EUco 49,2 kWh/(m2*rok)
Projekt domu Radosny progress

Opis projektu

Projekt domu Radosny to domek dla szczęśliwej rodziny. Może pełnić rolę jednorodzinnego - może być też domem letniskowym. Prosta bryła budynku z dwuspadowym dachem ozdobiona jest gankiem wejściowym i zadaszonym balkonem na słupach. Parter domu Radosny zaprojektowany jest jako jednoprzestrzenne pomieszczenie, z dużą kuchnio-jadalnią i salonem. Na parterze można wygospodarować dodatkowy pokój przenosząc jadalnię do salonu. Na poddaszu zaplanowano trzy sypialnie.

Kup teraz projekt

Cena: 4950 zł

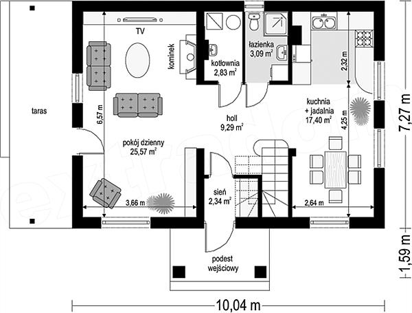
Rzut kondygnacji projektu Radosny - Rzut parteru

1 wiatrołap: 2,34 m2
2 hall: 9,29 m2
3 kuchnia + jadalnia: 17,4 m2
4 łazienka: 3,09 m2
5 kotłownia: 2,83 m2
6 pokój dzienny: 25,57 m2

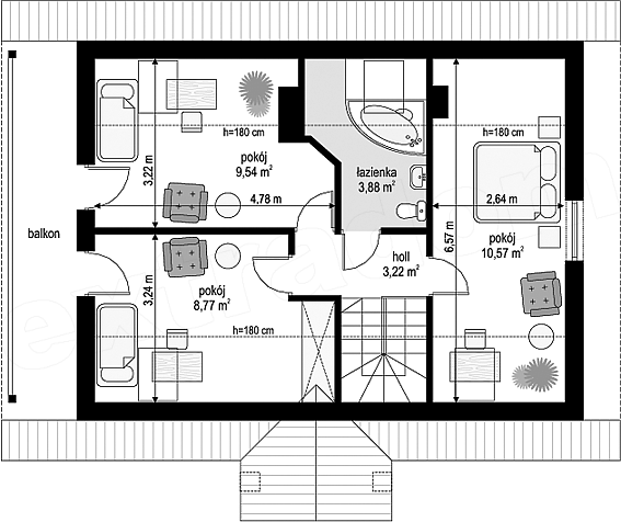
Rzut kondygnacji projektu Radosny - Rzut poddasza

1 pokój: 9,54 m2
2 pokój: 8,77 m2
3 łazienka: 3,88 m2
4 pokój: 10,57 m2
5 hall: 3,22 m2

Usytuowanie domu na działce

Koszt budowy domu


Orientacyjny koszt budowy domu w stanie surowym zamkniętym bez instalacji: 132 663 zł.

Technologia budowy domu


Fundamenty: betonowe. Ściany: gazobeton + styropian. Strop: Teriva. Elewacje: tynk cienkopowłokowy. Pokrycie dachu: dachówka ceramiczna lub blachodachówka. Nachylenie dachu: 42 stopnie.

Elewacje

autor: MG Projekt

Projekty podobne do Radosny WAH1055

Serwis prowadzi Extradom.plRegulaminPolityka prywatności