dachy mury Bud24 przetargi dekarze forum kontakt

Projekt domu Sosenka WAH1021

kontakt - projekty domów | extradom

Joanna Skoczylas - Kunda

Porady, oferty, zamówienia

Jak zamówić projekt?

22 451 01 70

pn-pt 8-22, sb 10-18

Pow. użytkowa 53,43 m2 Kubatura 193 m3 Wysokość domu 6,88 m
Pow. zabudowy 44,07 m2 Min. szer. działki 15,8 m Kąt nach. dachu 45 st
Pow. dachu 96,96 m2 EUco 54,4 kWh/(m2*rok)
Projekt domu Sosenka progress

Opis projektu

Projekt domu Sosenka to mały, zgrabny domek, mogący pełnić funkcję letniskowego, ale również całorocznego. Jego zaletami są właściwe proporcje, funkcjonalne wnętrze oraz prosta, tania w budowie konstrukcja.

Kup teraz projekt

Cena: 5190 zł

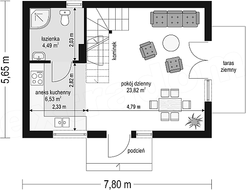
Rzut kondygnacji projektu Sosenka - Rzut parteru

1 łazienka: 4,49 m2
2 kuchnia: 6,53 m2
3 pokój dzienny: 23,82 m2

Rzut kondygnacji projektu Sosenka - Rzut poddasza

1 pokój: 6,77 m2 (10,77 m2)
2 korytarz: 1,55 m2 (2,91 m2)
3 pokój: 11,07 m2 (17,08 m2)

Usytuowanie domu na działce

Koszt budowy domu


Orientacyjny koszt budowy domu w stanie surowym zamkniętym bez instalacji: 72 265 zł.

Technologia budowy domu


Fundamenty: monolityczne betonowe. Ściany zewnętrzne: beton komórkowy + styropian lub szkielet drewniany. Ściany wewnętrzne: beton komórkowy lub drewniane. Strop: drewniany. Elewacje: tynk cienkopowłokowy lub szalówka. Pokrycie dachu: dachówka lub blacha dachówkowa. Nachylenie dachu: 45 stopni.

Elewacje

autor: MG Projekt

Projekty podobne do Sosenka WAH1021

Serwis prowadzi Extradom.plRegulaminPolityka prywatności