Opis projektu
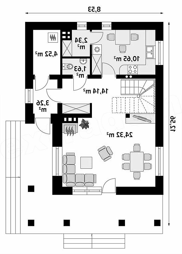
Nieduży dom jednorodzinny, przeznaczony dla 4-osobowej rodziny. Na parterze zaprojektowano pomieszczenia strefy dziennej oraz pomieszczenie gospodarcze. Na poddaszu zlokalizowano pomieszczenia strefy nocnej.
Joanna Skoczylas - Kunda
Porady, oferty, zamówienia
22 451 01 70
pn-pt 8-22, sb 10-18
| Pow. użytkowa | 106,26 m2 | Kubatura | 553 m3 | Wysokość domu | 8,83 m |
| Pow. zabudowy | 91,25 m2 | Min. szer. działki | 16,53 m | Kąt nach. dachu | 45 st |
| Pow. dachu | 200 m2 | EUco | 34,42 kWh/(m2*rok) |
Nieduży dom jednorodzinny, przeznaczony dla 4-osobowej rodziny. Na parterze zaprojektowano pomieszczenia strefy dziennej oraz pomieszczenie gospodarcze. Na poddaszu zlokalizowano pomieszczenia strefy nocnej.
Cena: 4749 zł
|
|
|
|
|
|