Opis projektu
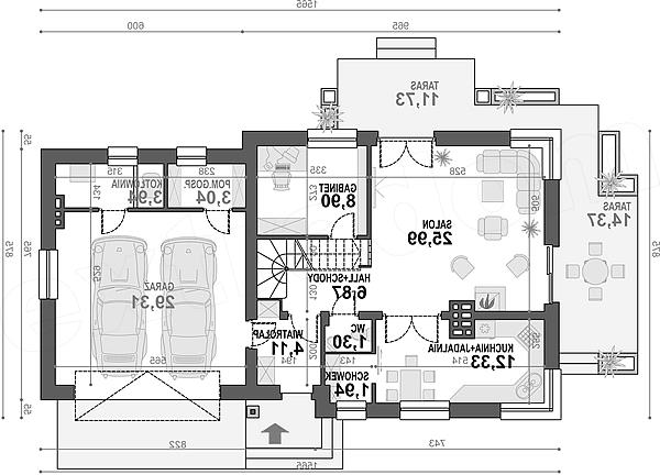
Guliwer 2G+ to wersja projektu Guliwer z dwustanowiskowym garażem. Garaż przylega do bryły budynku i ma bezpośrednie przejście do domu. Bryła budynku jest prosta, zrezygnowano z wszelkich dekoracji na rzecz dużego tarasu okalającego dwie ściany domu. Taras z pewnością będzie stanowił świetne miejsce do rekreacji i sprawi, że domownicy będą mieli większy kontakt z przyrodą. Projekt Guliwer 2G+ idealnie pasuje więc do działki z wiekszą przestrzenią przewidzianą na ogród. Dzięki większej powierzchni garażu zwiększyła się przestrzeń użytkowego poddasza. Kluczową zaletą tego projektu jest zminimalizowana komunikacja. Jedną z sypialni zaplanowano na dwie osoby. Wersja z węższym garażem: GULIWER 2G.
