dachy mury Bud24 przetargi dekarze forum kontakt

Projekt domu Michałek WAH1333

kontakt - projekty domów | extradom

Joanna Skoczylas - Kunda

Porady, oferty, zamówienia

Jak zamówić projekt?

22 451 01 70

pn-pt 8-22, sb 10-18

Pow. użytkowa 102,15 m2 Kubatura 442 m3 Wysokość domu 8,53 m
Pow. zabudowy 79,5 m2 Min. szer. działki 16,41 m Kąt nach. dachu 42 st
Pow. dachu 150,1 m2 EUco 47,6 kWh/(m2*rok)
Projekt domu Michałek progress

Opis projektu

Projekt domu Michałek to śliczny domek jednorodzinny – zrealizowany jako „braciszek” projektu „ Michalina ” - oba domy mają podobną wielkość i rozplanowanie wnętrza , różną się kształtem dachu). Michałek został zaprojektowany jako wygodny dom dla czteroosobowej rodziny - jest parterowy z poddaszem użytkowym. Na parterze przewidziano obszerną część dzienną, z salonem, aneksem jadalnym, ładną – częściowo otwartą kuchnią, holem i dużą kotłownią. Na poddaszu mieszczą się trzy sypialnie i wygodna łazienka. Tradycyjna bryła budynku, zbudowana na planie kwadratu, została przekryta dwuspadowym dachem, z lukarnami. Elewację frontową urozmaica zadaszenie nad wejściem, wsparte na kolumnie i zastrzale. Elewację ogrodową ozdabiają: lukarna z balkonikiem i zadaszenie tarasu podparte kolumnami. Architektura domu jest spokojna i skromna, jednocześnie zachowane zostały właściwe proporcje bryły. Projekt domu Michałek to doskonała propozycja dla Inwestorów szukających niedużego, wygodnego domu dla swojej rodziny, biorących pod uwagę oszczędność kosztów, prostotę budowy i niewielki koszt utrzymania domu. Pracownia posiada wersję odbicia lustrzanego projektu.

Kup teraz projekt

Cena: 5450 zł

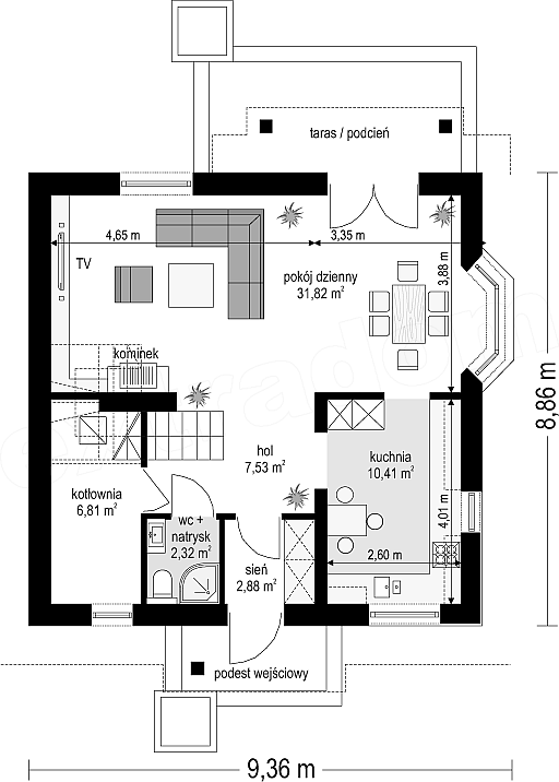
Rzut kondygnacji projektu Michałek - Rzut parteru

1 wiatrołap: 2,88 m2
2 hall: 7,53 m2
3 kuchnia: 10,41 m2
4 pokój dzienny: 31,82 m2
5 kotłownia: 6,81 m2
6 łazienka: 2,32 m2

Rzut kondygnacji projektu Michałek - Rzut poddasza

1 hall: 3,87 m2
2 pokój: 9,82 m2 (11,53 m2)
3 pokój: 12,38 m2 (15,17 m2)
4 pokój: 13,08 m2 (14,53 m2)
5 łazienka: 8,04 m2 (11,08 m2)

Usytuowanie domu na działce

Koszt budowy domu


Orientacyjny koszt budowy domu w stanie surowym zamkniętym bez instalacji: 155 361 zł.

Technologia budowy domu


Fundamenty: betonowe ławy i ściany fundamentowe z bloczków betonowych. Ściany zewnętrzne: ściany murowane - pustaki porotherm 25 + styropian + tynk cienkowarstwowy. Strop: Teriva. Elewacje: tynk cienkowarstwowy na styropianie. Pokrycie dachu: dachówka. Nachylenie dachu: 42 stopnie.

Elewacje

autor: MG Projekt

Projekty podobne do Michałek WAH1333

Serwis prowadzi Extradom.plRegulaminPolityka prywatności