dachy mury Bud24 przetargi dekarze forum kontakt

Projekt domu Michalina WAH1332

kontakt - projekty domów | extradom

Joanna Skoczylas - Kunda

Porady, oferty, zamówienia

Jak zamówić projekt?

22 451 01 70

pn-pt 8-22, sb 10-18

Pow. użytkowa 102,8 m2 Kubatura 437 m3 Wysokość domu 8,53 m
Pow. zabudowy 79,5 m2 Min. szer. działki 17,23 m Kąt nach. dachu 42 st
Pow. dachu 148,13 m2 EUco 27 kWh/(m2*rok)
Projekt domu Michalina progress

Opis projektu

Projekt domu Michalina to uroczy domek jednorodzinny – zrealizowany jako „braciszek” projektu Michałek - oba domy mają podobną wielkość i rozplanowanie wnętrza, różną się kształtem dachu. Dom Michalina został zaprojektowany dla czteroosobowej rodziny - budynek jest parterowy z poddaszem użytkowym. Na parterze przewidziano obszerną część dzienną, z salonem, aneksem jadalnym, ładną – otwartą kuchnią, holem i dużą kotłownią. Na poddaszu mieszczą się trzy sypialnie i wygodna łazienka. Tradycyjna bryła budynku, zbudowana na planie kwadratu, została przekryta dwuspadowym dachem. Dach zaprojektowano tak, aby ściany szczytowe domu były od strony elewacji frontowej i ogrodowej. Front budynku ozdabia zgrabny daszek podkreślający wejście. Od strony ogrodu zaprojektowano z kolei balkon na kolumnach, będący jednocześnie zadaszeniem tarasu. Architektura domu jest spokojna, jednocześnie zachowane zostały właściwe proporcje bryły. Zastosowane nowoczesne materiały i ciekawa kolorystyka dają udany efekt całości. Michalina to doskonała propozycja dla Inwestorów szukających niedużego, wygodnego domu dla swojej rodziny, biorących pod uwagę oszczędność kosztów, prostotę budowy i niewielki koszt utrzymania domu. Pracownia posiada również wersję odbicia lustrzanego projektu domu Michalina.

Kup teraz projekt

Cena: 5450 zł

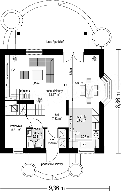
Rzut kondygnacji projektu Michalina - Rzut parteru

1 wiatrołap: 2,88 m2
2 hall: 7,53 m2
3 kuchnia: 8,88 m2
4 pokój dzienny: 33,67 m2
5 wc: 2,32 m2
6 kotłownia: 6,81 m2

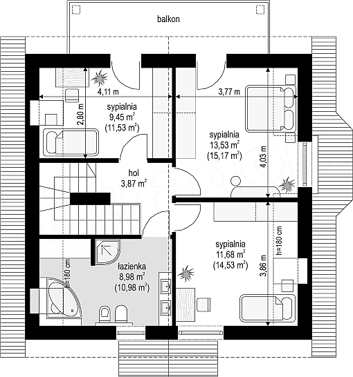
Rzut kondygnacji projektu Michalina - Rzut poddasza

1 hall: 3,87 m2
2 pokój: 9,45 m2 (11,53 m2)
3 pokój: 13,53 m2 (15,17 m2)
4 pokój: 11,68 m2 (14,53 m2)
5 łazienka: 8,98 m2 (10,98 m2)

Usytuowanie domu na działce

Technologia budowy domu


Fundamenty: betonowe ławy i ściany fundamentowe z bloczków betonowych. Ściany zewnętrzne: ściany murowane - pustaki porotherm 25 + styropian + tynk cienkowarstwowy. Strop: Teriva. Elewacje: tynk cienkowarstwowy na styropianie. Pokrycie dachu: dachówka. Nachylenie dachu: 42 stopnie.

Elewacje

autor: MG Projekt

Projekty podobne do Michalina WAH1332

Serwis prowadzi Extradom.plRegulaminPolityka prywatności