Koszt budowy domu
Orientacyjny koszt budowy domu w stanie surowym zamkniętym bez instalacji: 175 696 zł.
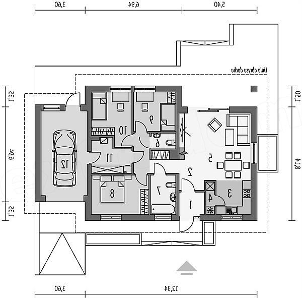
Technologia budowy domu
Ściany zewnętrzne: murowane, dwuwarstwowe, beton komórkowy firmy H+H 24 cm, ocieplenie styropian Termo Organika 20 cm. Ściany wewnętrzne: nośne i działowe murowane, beton komórkowy firmy H+H 24 cm i 12 cm. Strop: gęstożebrowy Teriva, ocieplenie wełna mineralna Isover 30 cm. Dach: konstrukcja drewniana, dachówka ceramiczna firmy Röben, więźba dachowa dostępna również w systemie prefabrykacji drewnianej. Ogrzewanie: kocioł gazowy kondensacyjny firmy Viessmann, rozprowadzenie ciepła: grzejniki firmy Purmo. Wentylacja: grawitacyjna. OZE: kolektory słoneczne firmy Viessmann. Dodatkowo: stacja uzdatniania wody firmy Viessmann. Elewacje: tynk cienkowarstwowy mineralny w kolorze TO-PA001 i TO-GY011 z palety firmy Termo Organika, okładzina drewniana. Stolarka: drewniana, PVC lub aluminiowa, rolety zewnętrzne w systemie CleverBox firmy BeClever, drzwi wejściowe i brama garażowa firmy Hörmann. Otoczenie: kostka betonowa i płyty tarasowe firmy Libet, system tarasowy ProDeck - deska kompozytowa Terra w kolorze orzech.