Opis projektu
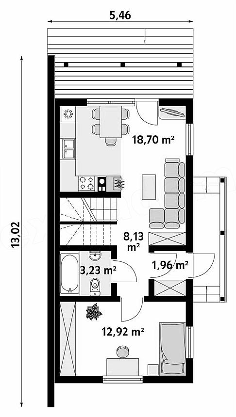
Budynek jednorodzinny z użytkowym poddaszem przeznaczony dla 3 – 4-osobowej rodziny. Typowy projekt na wąską działkę. Budynek ma ścianę przeciwpożarową, przez co można go postawić po granicy działki. Na parterze znajduje się salon z aneksem kuchennym, pokój i łazienka. Na poddaszu zaprojektowano dwa pokoje i wc.
