dachy mury Bud24 przetargi dekarze forum kontakt

Projekt domu Chatka 2 WAH1221

kontakt - projekty domów | extradom

Joanna Skoczylas - Kunda

Porady, oferty, zamówienia

Jak zamówić projekt?

22 451 01 70

pn-pt 8-22, sb 10-18

Pow. użytkowa 64,78 m2 Kubatura 264 m3 Wysokość domu 7,47 m
Pow. zabudowy 59,08 m2 Min. szer. działki 15,04 m Kąt nach. dachu 50 st
Pow. dachu 127,89 m2 EUco 42,2 kWh/(m2*rok)
Projekt domu Chatka 2 progress

Opis projektu

Projekt domu Chatka 2 stanowi powiększoną wersję popularnego projektu Chatka. Dom Chatka 2 jest domem jednorodzinnym dla 3-4 osobowej rodziny. Dom Chatka 2 może służyć również jako domek letniskowy.

Kup teraz projekt

Cena: 5250 zł

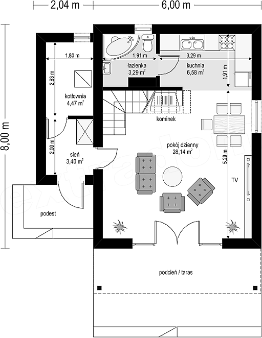
Rzut kondygnacji projektu Chatka 2 - Rzut parteru

1 wiatrołap: 3,4 m2
2 kotłownia: 4,47 m2
3 pokój dzienny: 28,14 m2
4 kuchnia: 6,58 m2
5 łazienka: 3,29 m2

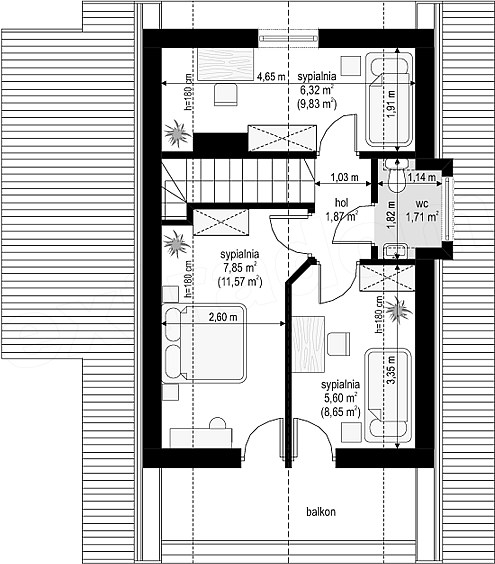
Rzut kondygnacji projektu Chatka 2 - Rzut poddasza

1 pokój: 6,32 m2 (9,83 m2)
2 hall: 1,87 m2
3 łazienka: 1,71 m2
4 pokój: 5,6 m2 (8,65 m2)
5 pokój: 7,85 m2 (11,57 m2)

Usytuowanie domu na działce

Koszt budowy domu


Orientacyjny koszt budowy domu w stanie surowym zamkniętym bez instalacji: 129 824 zł.

Technologia budowy domu


Fundamenty: betonowe ławy i ściany fundamentowe z bloczków betonowych. Ściany zewnętrzne: ściany murowane - bloczki gazobetonowe 24 + styropian + tynk cienkowarstwow. Strop: Teriva. Elewacje: tynk cienkowarstwowy na styropianie. Pokrycie dachu: dachówka. Nachylenie dachu: 50 stopni.

Elewacje

autor: MG Projekt

Projekty podobne do Chatka 2 WAH1221

Serwis prowadzi Extradom.plRegulaminPolityka prywatności