dachy mury Bud24 przetargi dekarze forum kontakt

Projekt domu Nemezjusz WRW1171

kontakt - projekty domów | extradom

Joanna Skoczylas - Kunda

Porady, oferty, zamówienia

Jak zamówić projekt?

22 451 01 70

pn-pt 8-22, sb 10-18

Pow. użytkowa 137,44 m2 Kubatura 519,23 m3 Wysokość domu 8,845 m
Pow. zabudowy 136,55 m2 Min. szer. działki 20,16 m Kąt nach. dachu 40 st
Pow. dachu 238,48 m2
Projekt domu Nemezjusz progress

Opis projektu

Projekt zgodny z wymaganiami WT2021. Dom z poddaszem użytkowym, przeznaczony dla 4-5-osobowej rodziny. Na parterze znajduje się przestronny pokój dzienny połączony z jadalnią oraz otwarta kuchnia. Wyjście na taras z podcieniem jest możliwe zarówno z salonu jak i z dodatkowego pokoju, który może pełnić funkcję gabinetu. Na poddaszu znajdują się trzy sypialnie, dwie łazienki oraz garderoba. Nad garażem można zaadaptować strych nieużytkowy dostępny bezpośrednio z klatki schodowej na dodatkowe pomieszczenie gospodarcze lub pokój. Projekt w standardzie posiada dodatkowo projekt ogrzewania kominkiem z płaszczem wodnym. Projekt dostępny w wersji z garażem dwustanowiskowym NEMEZJUSZ 2. Projekty podobne to: MAKSYM i ALFEUSZ.

Kup teraz projekt

Cena: 4250 zł

Rzut kondygnacji projektu Nemezjusz - Rzut parteru

1 wiatrołap: 5,3 m2
2 hall: 2,67 m2
3 kuchnia: 10,65 m2
4 spiżarnia: 2,3 m2
5 pokój dzienny + jadalnia: 32,56 m2
6 pokój: 10,17 m2
7 łazienka: 3,33 m2
8 pomieszczenie gospodarcze: 5,86 m2
9 garaż jednostanowiskowy: 19,29 m2

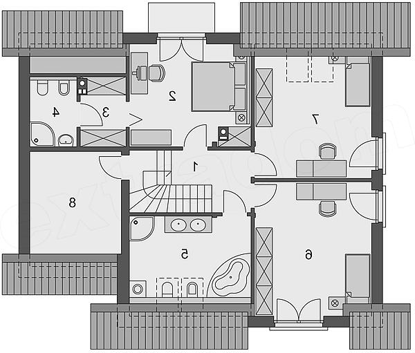
Rzut kondygnacji projektu Nemezjusz - Rzut poddasza

1 hall: 4,55 m2 (4,67 m2)
2 pokój: 15,13 m2 (15,96 m2)
3 garderoba: 3,46 m2 (3,88 m2)
4 łazienka: 3,69 m2 (4,19 m2)
5 łazienka: 10,02 m2 (15,72 m2)
6 pokój: 18,91 m2 (20,27 m2)
7 pokój: 14,87 m2 (20,39 m2)
8 strych: 11,34 m2 (13,53 m2)

Usytuowanie domu na działce

Przekrój

Koszt budowy domu


Orientacyjny koszt budowy domu w stanie surowym zamkniętym bez instalacji: 224 002 zł.

Technologia budowy domu


Fundamenty: bezpośrednie, na ławach i stopach fundamentowych. Ściany zewnętrzne: bloczki z bet. komórkowego (odm. 600) - 24 cm + styropian TERMO ORGANIKA typ Fasada 12/16 cm. Ściany wewnętrzne: bloczki z bet. komórkowego (odm. 600) - 24 cm (działowe - 12 cm) + działowe z płyty G-K na ruszcie (poddasze). Strop: gęstożebrowy Teriva I oraz żelbetowy monolityczny gr. 16 i 20 cm. Elewacje: tynk - System firmy TERMO ORGANIKA, deska elewacyjna, płytki klinkierowe. Pokrycie dachu: dachówka cementowa. Konstrukcja dachu: drewniana o układzie konstrukcyjnym mieszanym. Schody wewnętrzne: żelbetowe monolityczne zabiegowe. Ogrzewanie: kocioł gazowy jednofunkcyjny kondensacyjny, dodatkowe źródło ciepła - kominek z płaszczem wodnym. Projekt jest zgodny z wymaganiami WT2021, a konstrukcja była obliczana zgodnie z eurokodami.

Elewacje

autor: Domena

Projekty podobne do Nemezjusz WRW1171

Serwis prowadzi Extradom.plRegulaminPolityka prywatności