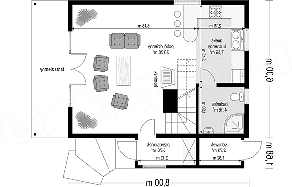
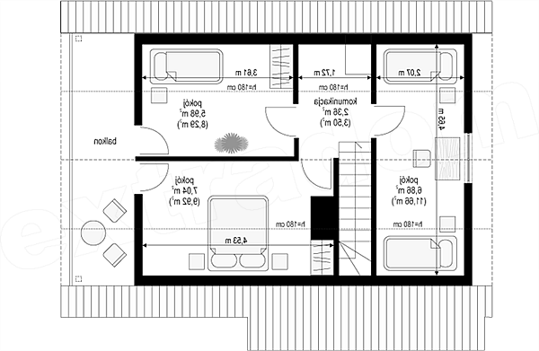
Opis projektu
Projekt domu Chatka Drewniana to wymarzony dom na działkę rekreacyjną lub do całorocznego zamieszkiwania. Mimo niewielkiej powierzchni cechuje się funkcjonalnym wnętrzem i mieści w sobie wszystkie potrzebne pomieszczenia: na dole wygodny salon z kominkiem, kuchnią i łazienką, na poddaszu 2 lub 3 sypialnie.
