dachy mury Bud24 przetargi dekarze forum kontakt

Projekt domu Gucio WAH1231

kontakt - projekty domów | extradom

Joanna Skoczylas - Kunda

Porady, oferty, zamówienia

Jak zamówić projekt?

22 451 01 70

pn-pt 8-22, sb 10-18

Pow. użytkowa 93,84 m2 Kubatura 402 m3 Wysokość domu 8,1 m
Pow. zabudowy 70,49 m2 Min. szer. działki 15,94 m Kąt nach. dachu 42 st
Pow. dachu 130,84 m2 EUco 47,9 kWh/(m2*rok)
Projekt domu Gucio progress

Opis projektu

Projekt domu Gucio to parterowy domek jednorodzinny z poddaszem użytkowym dla rodziny cztero-pięcioosobowej. Zaprojektowany został na planie prostokąta i przekryty symetrycznym dwuspadowym dachem. Prosta bryła budynku w połączeniu z nowoczesnym detalem i materiałami daje atrakcyjny wygląd zewnętrzny domu. Fragmenty elewacji obłożone drewnem, czy płytami HPL dodatkowo urozmaicają białe powierzchnie ścian. Wewnątrz domu Gucio , na parterze zaprojektowano jednoprzestrzenną część dzienną, z połączonym salonem, holem, aneksem jadalnym z wykuszem, wyeksponowanymi reprezentacyjnymi schodami. Kominek usytuowany na ścianie zewnętrznej można podziwiać wraz z widokiem na ogród jednocześnie. Duże przeszklone drzwi prowadzą z salonu na częściowo zadaszony taras. Na poddaszu, oprócz sporej łazienki, zaprojektowano trzy wygodne sypialnie z niedużymi "skosami" i wbudowanymi szafami-garderobami. Pracownia posiada także projekt domu Gucio w wersji odbicia lustrzanego oraz w wersji wariantowej Gucio 2.

Kup teraz projekt

Cena: 5190 zł

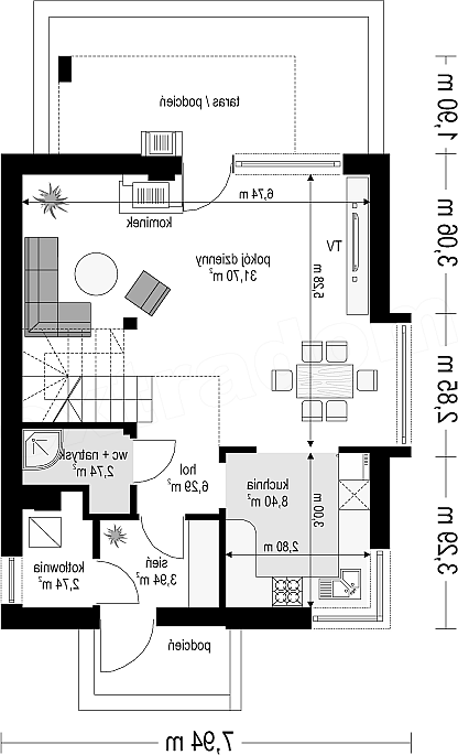
Rzut kondygnacji projektu Gucio - Rzut parteru

1 wiatrołap: 3,94 m2
2 hall: 6,29 m2
3 kuchnia: 8,4 m2
4 pokój dzienny: 31,7 m2
5 łazienka: 2,74 m2
6 kotłownia: 2,74 m2

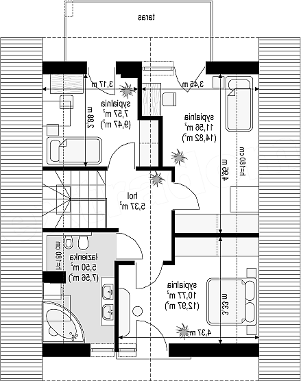
Rzut kondygnacji projektu Gucio - Rzut poddasza

1 pokój: 11,56 m2 (14,82 m2)
2 pokój: 7,57 m2 (9,47 m2)
3 hall: 5,37 m2
4 pokój: 10,77 m2 (12,97 m2)
5 łazienka: 5,5 m2 (7,56 m2)

Usytuowanie domu na działce

Koszt budowy domu


Orientacyjny koszt budowy domu w stanie surowym zamkniętym bez instalacji: 125 852 zł.

Technologia budowy domu


Fundamenty: betonowe ławy i ściany fundamentowe z bloczków betonowych. Ściany zewnętrzne: ściany murowane - pustaki porotherm 25 + styropian + tynk cienkowarstwowy. Strop: Teriva. Elewacje: tynk cienkowarstwowy na styropianie. Pokrycie dachu: dachówka. Nachylenie dachu: 42 stopnie.

Elewacje

autor: MG Projekt

Projekty podobne do Gucio WAH1231

Serwis prowadzi Extradom.plRegulaminPolityka prywatności