Opis projektu
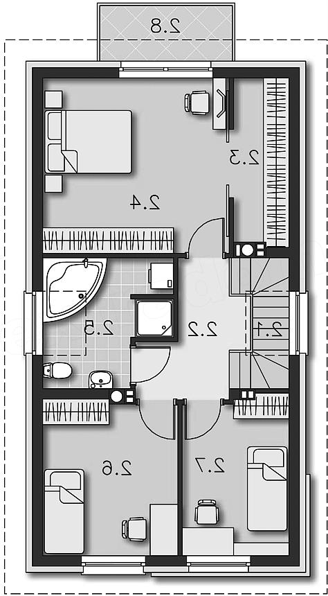
Ciekawy dom z użytkowym poddaszem, doskonały na wąską działkę. Na parterze, w części wspólnej, dziennej, przewidziano salon z kominkiem i pięknym dużym oknem, będącym jednocześnie wyjściem na taras, otwartą na salon kuchnię z miejscem na rodzinny stół, wc, pomieszczenie gospodarcze i kotłownię. Poddasze to część wyraźnie nocna, gdzie zaprojektowano trzy sypialnie, w tym jedną z własną garderobą i wyjściem na balkon oraz wygodną, dużą łazienkę.
