dachy mury Bud24 przetargi dekarze forum kontakt

Projekt domu Sosenka drewniana WAH1109

kontakt - projekty domów | extradom

Joanna Skoczylas - Kunda

Porady, oferty, zamówienia

Jak zamówić projekt?

22 451 01 70

pn-pt 8-22, sb 10-18

Pow. użytkowa 51,25 m2 Kubatura 151 m3 Wysokość domu 6,85 m
Pow. zabudowy 45,56 m2 Min. szer. działki 15,26 m Kąt nach. dachu 45 st
Pow. dachu 97,4 m2 EUco 54,4 kWh/(m2*rok)
Projekt domu Sosenka drewniana progress

Opis projektu

Projekt domu Sosenka Drewniana to mały zgrabny domek. Może pełnić funkcję letniskowego, ale również całorocznego domu. Jego zaletami są właściwe proporcje nadające estetyczny wygląd budynku, funkcjonalne wnętrze oraz prosta, tania w budowie konstrukcja.

Kup teraz projekt

Cena: 5290 zł

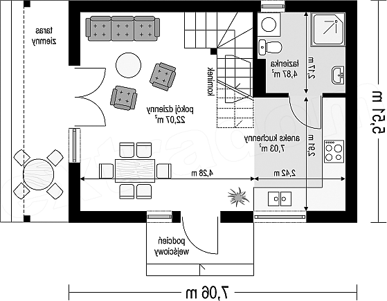
Rzut kondygnacji projektu Sosenka drewniana - Rzut parteru

1 pokój dzienny: 22,07 m2
2 kuchnia: 7,03 m2
3 łazienka: 4,87 m2

Rzut kondygnacji projektu Sosenka drewniana - Rzut poddasza

1 hall: 1,49 m2 (3 m2)
2 pokój: 6,65 m2 (11,68 m2)
3 pokój: 9,14 m2 (15,34 m2)

Usytuowanie domu na działce

Przekrój

Koszt budowy domu


Orientacyjny koszt budowy domu w stanie surowym zamkniętym bez instalacji: 85 829 zł.

Technologia budowy domu


Fundamenty: ławy betonowe, ściany z bloczków. Technologia ścian zewnętrznych konstrukcja szkieletowa + tynk cienkowarstwowy na OSB lub inne technologie. Technologia stropu strop belkowy + podsufitka + posadzka na płycie OSB lub inne technologie. Pokrycie dachu: blacha dachówkowa lub dachówka. Nachylenie dachu: 45 stopni.

Elewacje

autor: MG Projekt

Projekty podobne do Sosenka drewniana WAH1109

Serwis prowadzi Extradom.plRegulaminPolityka prywatności